AV House
Green architecture for mindful living in a post-COVID world

Client

Undisclosed

Location

Mashhad, IR

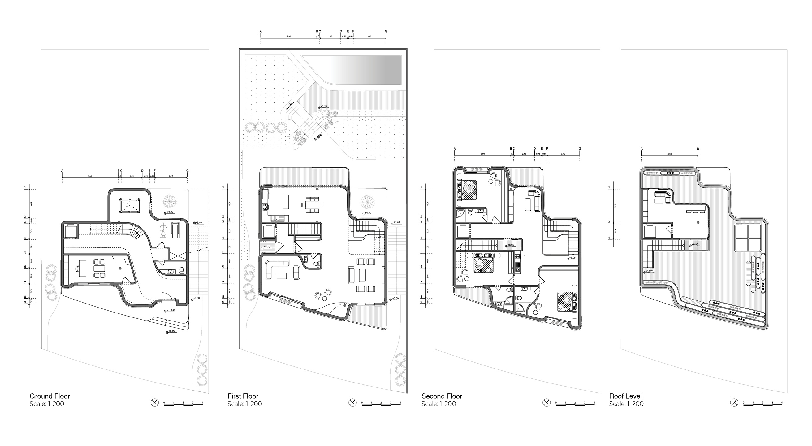
Area

750 square Meter

Disciplines

Architecture, Sustainable Design, Residential Design, Facade design, Interior design, Technology & Research

Market

Residential

Status

Unbuilt

AV House is a sustainable residential architecture project conceived as a response to the evolving patterns of living in a post-COVID world . Designed as a self-sufficient home away from urban density, the project redefines the future of private housing by creating spaces dedicated to wellness, ecological living, and holistic care.

The design explores how a residence can operate as an independent, self-sustaining ecosystem, integrating green roofs, edible façades , urban vertical farming systems, and rooftop gardens as functional architectural components. By merging architecture and agriculture, AV House transforms daily living into a circular sustainable lifestyle, promoting discovery, mindfulness, and environmental responsibility.

This forward-thinking approach enables the building to produce a significant portion of the residents’ food on-site, resulting in low food mileage, lower carbon footprint, reduced waste and packaging, and improved nutritional value. AV House represents a future-forward vision of eco-conscious living, where nature, architecture, and human health are seamlessly intertwined to create resilient, adaptive, and regenerative homes for the future.

Principal: Hoda Eskandarnia
Client: Undisclosed
Visualisations: Morteza Ramezani, Shahab Mohajerani
Structural Engineering Consultant: Pasargad Co
Mechanical Engineering Consultant: Hassan Abbasnia

Design that inspires. Spaces that enhance life and work.
From concept to reality — let’s create something extraordinary, together.

contact
Made by ZohalGroup & Powered by Zoohal.ir